







Retail/Shop
Retail/Shop To Let Fareham
PROPERTY ID: 140534
PROPERTY TYPE
Retail/Shop
STATUS
Available
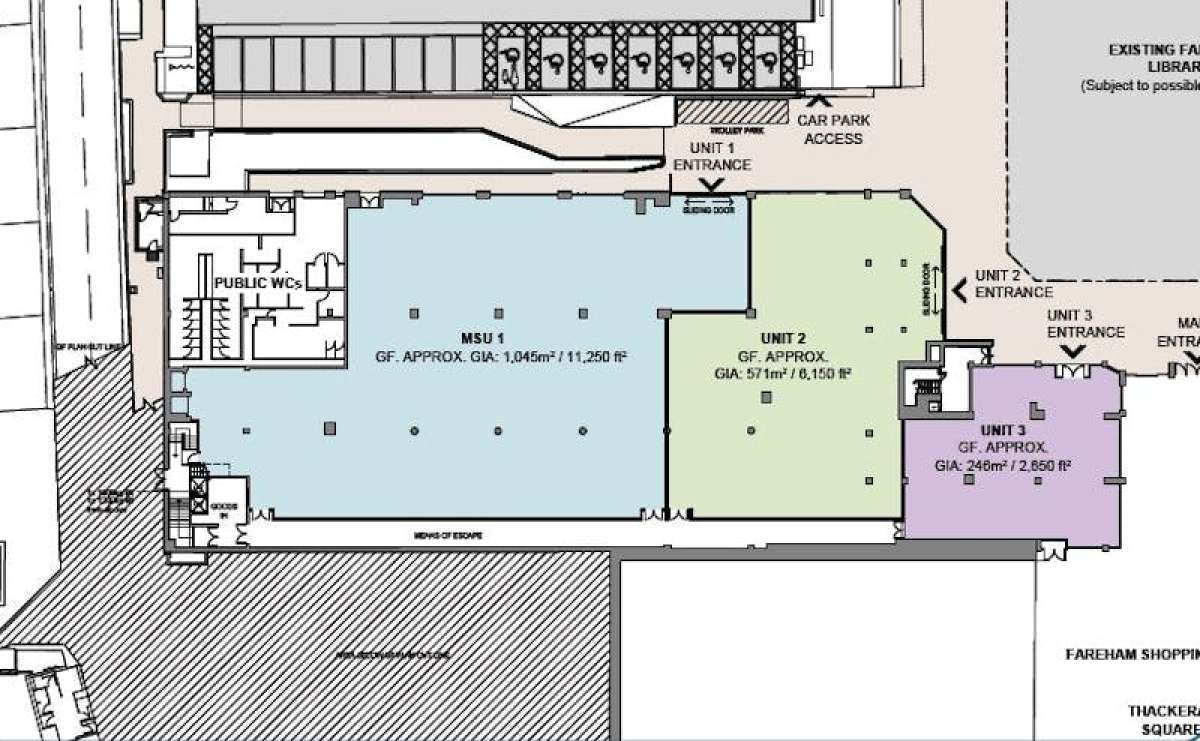
SIZE
2,650-11,250 sq.ft
Key Features
Unit configurations available to suit occupier requirements
Suitable for Retail and F&B uses
Opposite new 136 space surface car park
Servicing from share 1st floor dedicated loading bays
Property Details
Fareham Shopping Centre Is Located In The Heart Of Fareham And Adjacent To A New 136 Space Surface Car Park.
The Centre Is Surrounded By National Retail Occupiers, With Civic And Nhs Offices In Proximity Providing A Large Demographic Of Office Workers, Offering The Chance To Be Part Of An Ongoing Significant Investment With Plans For Future Regeneration.
About the Agent
Vail Williams
See Agent's Other PropertiesRetail Unit
POA
Fareham Retail Parade, Fareham, PO16 0PQ
Retail/Shop -
Available
2,650-11,250 sq ft
246-1,045 sqm
Show phone number